RIVERSIDE HOUSE | SOUTHBURY, CONNECTICUT
THERBEN | RANDAL HODER DESIGN collaboration
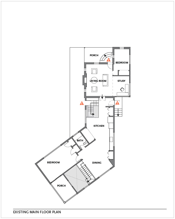
When found, this 3,000sf house was ripe for demolition. Its original log cabin was attached to a 1960s addition that was sorely outdated. A complete renovation and reorganization of the interior spaces into usable rooms was required. Circulation paths were analyzed leaving two of the six original entrances, new energy-efficient windows were installed bringing more light into the space, plumbing and mechanical systems were revamped and new fixtures and finishes were used throughout.